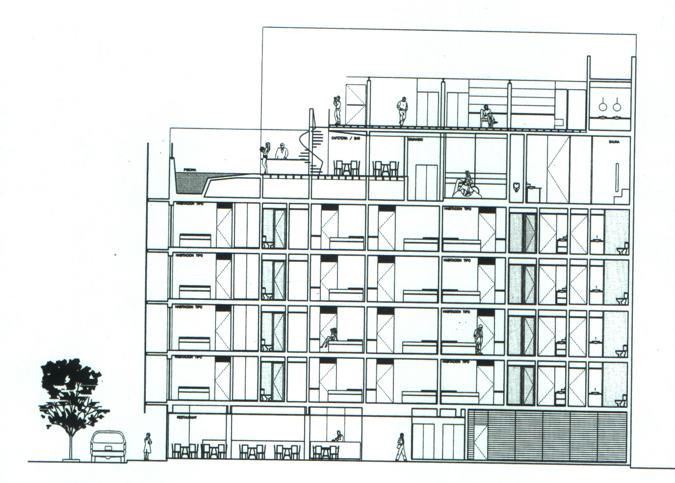
剖面圖                       1~5樓為舊有公寓6.7樓為增建                                                                               回首頁