|
增建情況 |
|
||
|
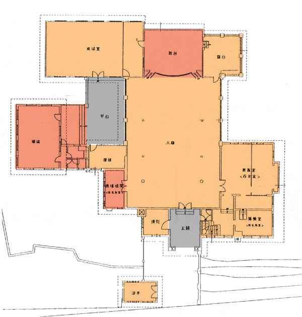
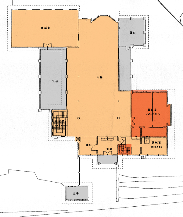
光復後陽明山民眾服務社與台北縣議會招待所遷入使用,一樓公共浴場仍對外開放,因此將東北角原有 主梯拆除封起,打開西側一樓外牆另設獨立出入口,並在東側增建四間單人浴池。 二樓大廳墊高南側地板形成舞台空間並做為大禮堂使用,封起的樓梯間做為新的辦公室,二樓增建的部 分做為職員宿舍。一棟建築分成三種不同功能由不同單位管理使用(浴場、辦公、宿舍),此時的景觀與 始建和成熟期已有極大的變化。
|
|||
![]() |
![]() |
||
|
原貌二樓平面 |
增建後二樓平面圖 |
||
![]() |
![]() |
||
| 原貌一樓平面圖 | 增建後一樓平面圖 |
|
|
|
|
|
|
|
| 原貌北向立面圖 | 增建後北向立面圖 | ||
|
|
|
||
| 原貌南向立面圖 | 增建後南向立面圖 | ||
![]() |
![]() |
||
| 原貌東向立面圖 | 增建後東向立面圖 | ||
![]() |
![]() |
||
| 原貌西向立面圖 | 增建後西向立面圖 | ||