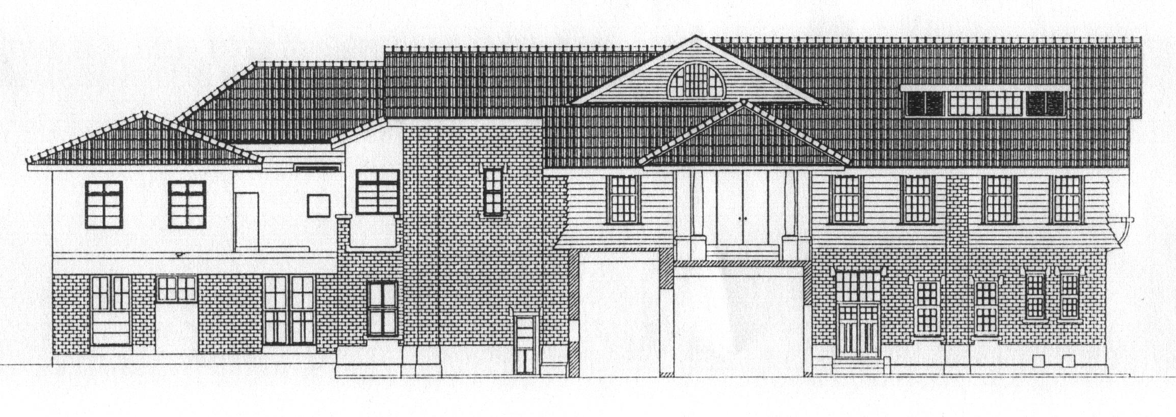
北向立面圖
現況北向立面圖
原貌北向立面圖
修復北向立面圖

回圖首頁