Museum of Energy / Arquitecturia

基地分析 / 設計說明 / 平面圖 / 立面圖 / 剖面圖 / 透視圖 / 回首頁 / 21st Century Museums

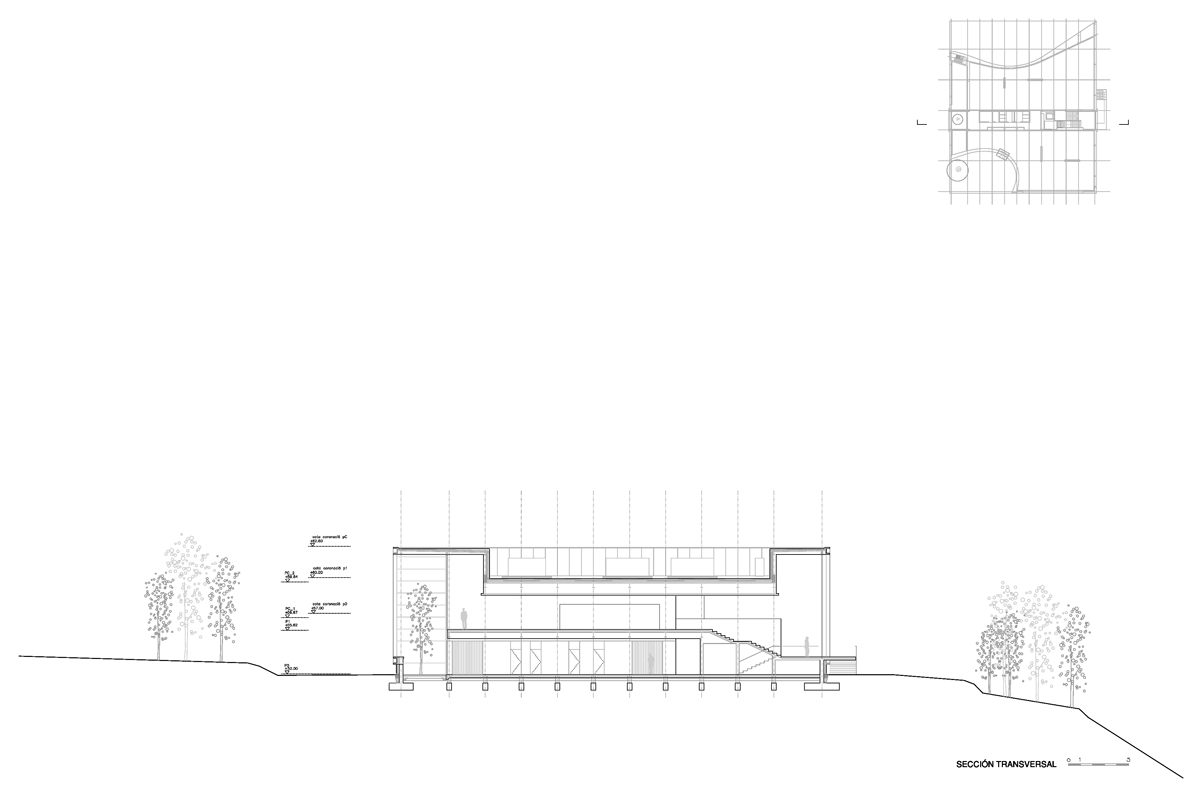
Section

從剖面上可看到樓層間利用樓梯做為連接的同時,也因為基地的關係,在東側也提供了眺望埃布羅河的景觀平台,而在西側,二樓挑空處則種植了一顆樹將綠意引入室內且強化樓層之間的交流