建造時間: West 1984 -1990
East 1984 -1995
建造地點: Avenue Jean Jaures
: Paris,France
設計裡念
特別注重都市建築的和協性,主張單一體的建築,需有其獨特的個性,但必需是建立在都市共同發展意識的大體之下,非一昧裝飾浮誇的表現,而應是強調整體的關係。在此案的核心發展設計出另一類的對立手法來區分出兩單元其獨特的個性,但有能彼此呼應,便足以窺視出其想法。東、西區分別是Portzamparc對於都市建築理論、造型哲學、複合群落組織、動態幾何、虛實空間之對應等等集大成的思想整體實現。
設計手法
這是一棟具有抒情味道及特徵的建築,充滿白色及曖昧的。他以輕質透明的構造手法,來對比其他在建築技術上的表現,足以代表法國的新學院派主義。
此設計的兩個重點在於,公共性開放空間和學生所對應的空間。它所包含的空間主要有:
舞蹈空間、爵士舞空間、古典樂練習空間'、電子樂練習空間案子的發展過程是配合老師和行政部門的參予。西廂市一間大學有無數間的工作室所組成;東廂的設計是演奏廳和博物館,供一個管弦樂團所使用。這半部的設計像是個乳酪,填充了無數的孔洞,而每個空隙之間彼此必須是有關係的。所有的空間在動線及焦點上是完全開放的,空間像街道一樣擁有燈'光和視景的。
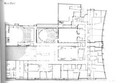
West Part
有秩序的將空間分割串聯,處理上維持幾何方式,但分割線較為自由與延續,多半是傾斜延伸到開放性的空間上來作為動線上的節點。

East Part
意味性的將主要演奏空間點出,置於中央走廊的盡頭是入口,似一蝸牛殼的動線導引,在空間的串聯上並用了高架的通廊橫跨整個東廂的基地。
