¡@
¡@
![]() |
¡@ |
|
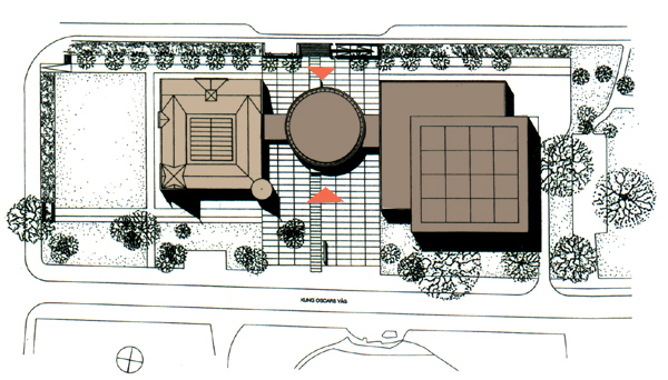
site plan ¡@ |
|
![]() |
|
|
first floor plan ¡@ |
¡@ ¡@ |
![]() |
|
|
second floor plan ¡@ |
¡@ ¡@ |
![]() |
|
|
third floor plan ¡@ |
¡@ ¡@ |
![]() |
|
|
elevation ¡@ |
¡@ ¡@ |
![]() |
|
|
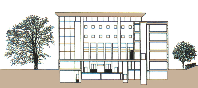
section ¡@ |
¡@ ¡@ |
![]() |
|
|
section ¡@ |
¡@ ¡@ |
¡@
¡@
¡@