

建築師:Churtichaga
+ Quadra-Salcedo
建造年代:1997
座落地點:Madrid, Spain
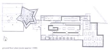
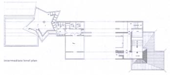
粉紅箭頭:主入口 淺橘色塊:圖書展示處 淺紫色塊:夾層(閱覽) 淺黃色塊:閱覽室 綠色塊:兒童圖書室 藍色塊:室外庭院 淺綠色塊:辦公室 紫紅色塊:小型表演室 淺藍色塊:讀書間 ----------------網路室
![]()

![]()
![]()
![]()
![]()

![]()

![]()
![]()
![]()


設計理念:
建築物依機能分為三個量體:

book stack hall-------------------------------children library----------------------------------------reading room
1. 大體積且較不透水的量體
藏書的地方
書架環繞在淺坡道旁--呈長梯形
坡道形成可以循環的路徑
悠閒散步的空間--提供通往不同機能空間的路徑
空間概念--從底層到高層 展現出一條學習曲線(learning curve)
-------------------兒童的圖書室 →→ 成人的閱讀與研究
-------------------在頂端空間達到極致--提供私人閱讀與網路使用的空間



2. 星形附屬建築
兒童圖書室
緊靠在主入口旁
紅磚基礎--上置百葉通風窗
刻面天花板--從中心柱呈輻射狀延伸而出
其中一面--可以從大面玻璃窗看到庭園景觀
---------------提供小孩嬉戲
3. 單層玻璃盒子
主要閱覽室
水族箱意象--從事慵懶的活動
其他空間:小型表演和說故事的空間
----------------私密性高的閱讀空間
構造處理:

加強磚造--讓圖書室營造出洞穴的感覺
黏土--當地產材,與混凝土搭配
磚--易操作,配合傳統建築工法
在表面質感的觸感上比混凝土更具有能反映環境的條件
--圖書室的溫度
資料來源
1.
The Architectural Review, 1283, Jan.2004
2. http://www.architectureweek.com/cgi-bin/dlk?http://www.chqs.net