

建築師:ARGE Architekten Domenig
Eisenkock Gruber
Pan-European competition
1997: 1st prize
建造年代:2002
座落地點:Graz,
Austria
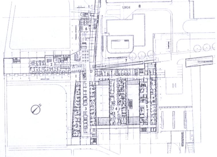
Garden The 1.
主要入口 2.
行政部門 3.
門診部門 4.
放射部門 5.
病理部門 6.
員工餐廳 7.
斜坡 8.
existing hospital![]()
![]()
![]()
![]()
![]()

Ground floor
與柱系統分離的兩條斜曲路線:西北:from地下室停車場
------------------------------------------東北:from the accident hospital
相交處:主要樓梯
放射部門
病理部門:實驗室、內視鏡檢查室----有路徑通往不同機能部門
9.
私人病房 10.
一般病房 11.
加護病房 12.
手術室


First floor----------------------------------------------------------------------------------------------Second
floor
一般病房:4人床,面西南,利採光採景;服務空間和護理站設在對面
私人病房:雙人床,空間沒有相對地大量增加;特權不明顯