Villa Shodhan作品檔案

圖片出處:LE CORBUSIER 1952-1957  ISBN 3-7608-8016-9

                                                                回本文

 

配置透視圖

 

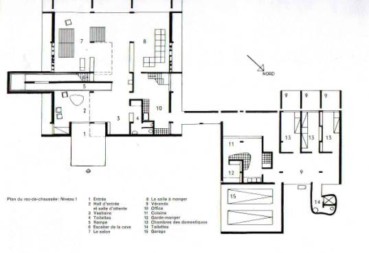
一樓平面

  

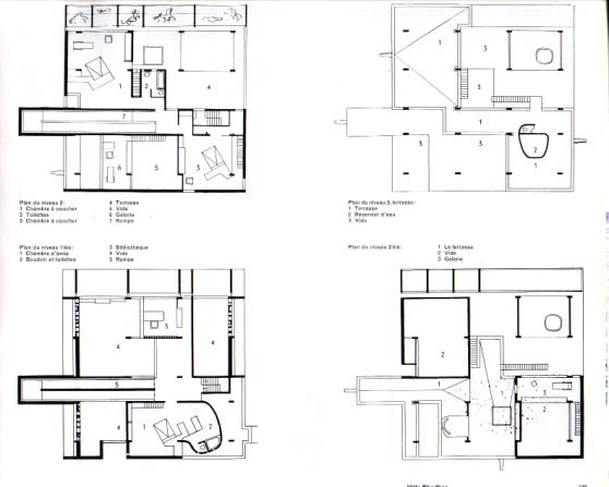
2  層平面圖 /  3層平面圖

1.5層平面圖 / 2.5層平面圖

 

3

 

4

 

 
 

2

 

剖面圖1

剖面圖2

剖面圖3

剖面圖4

剖面圖5

西北立面圖