|
住宿區、廚房構築性分析(Arthur and Yvonne Boyd Art Centre) |
|||
|
主結構 |
圍覆 |
細部處理 |
|
|
住宿區、廚房 |
屋 頂:木框架 |
金屬浪板屋頂面 |
木框架+混凝土牆 房間單元內滑門 臥鋪間隔區 天花處理 燈具 開窗形式 |
|
結構體:清水混凝土牆、柱 |
木窗、木製遮陽板 |
||
|
------------------------------------------------------------------------------------------------------------- |
|
|
住宿區、廚房屋頂 |
|
|
|
|
|
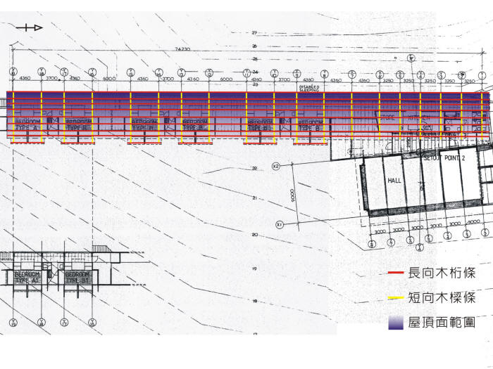
圖16:博藝得藝術中心_住宿、廚房區屋頂結構示意圖 底圖資料來源:Glenn Murcutt:buildings+projects 1962-2003 |
|
|
------------------------------------------------------------------------------------------------------------- |
|
|
■主結構 |
|
|
|
住宿區及廚房屋頂的主結構為木結構,整體由長向8根、短向19根木樑正交組構而成,向下傳遞力量至建物西側的19根木柱以及內部的混凝土承重牆上 |
|
圖17:住宿區、廚房之屋頂主結構 資料來源:http://www.pushpullbar.com/ |
|
|
■圍覆 |
|
|
|
住宿區及廚房屋頂的圍覆直接將金屬浪板固定至木構框架的屋頂結構上 |
|
圖18:住宿區、廚房屋頂主結構之圍覆 資料來源:http://www.pushpullbar.com/ |
|
|
------------------------------------------------------------------------------------------------------------- |
|
|
住宿區、廚房結構體 |
|
| 住宿區、廚房平面↓ | |
|
|
|
|
圖19:博藝得藝術中心_住宿、廚房區主體結構示意圖 底圖資料來源:Glenn Murcutt:buildings+projects 1962-2003 |
|
|
------------------------------------------------------------------------------------------------------------- |
|
|
■主結構 |
|
|
|
住宿區及廚房的主結構為清水混凝土牆及19根木柱上,此區長向跨距74.2米,短向跨距約6米 |
|
圖20:住宿區、廚房之主結構 資料來源:http://www.pushpullbar.com/ |
|
|
■圍覆 |
|
|
|
以懸挑的木製臥鋪區以及木窗、木製遮陽板整體構成此區的圍覆 |
|
圖21:住宿區之圍覆 資料來源:http://www.pushpullbar.com/ |
|
|
------------------------------------------------------------------------------------------------------------- |
|